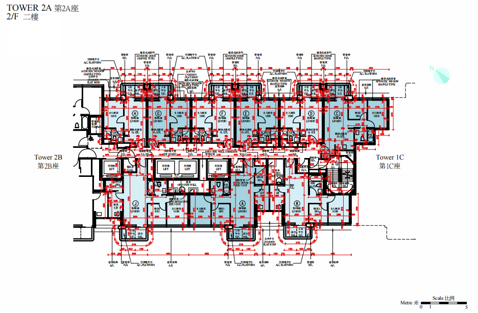
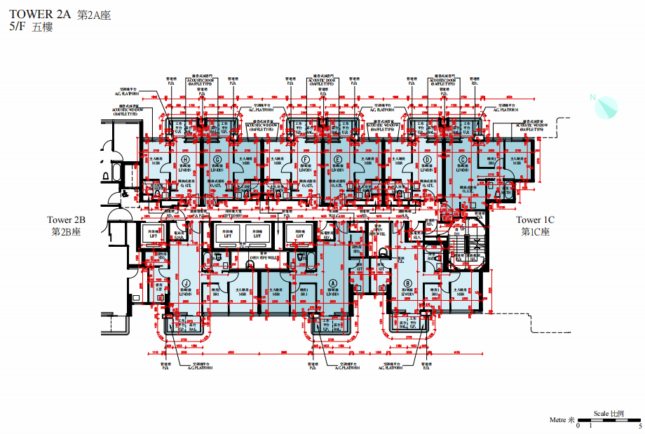
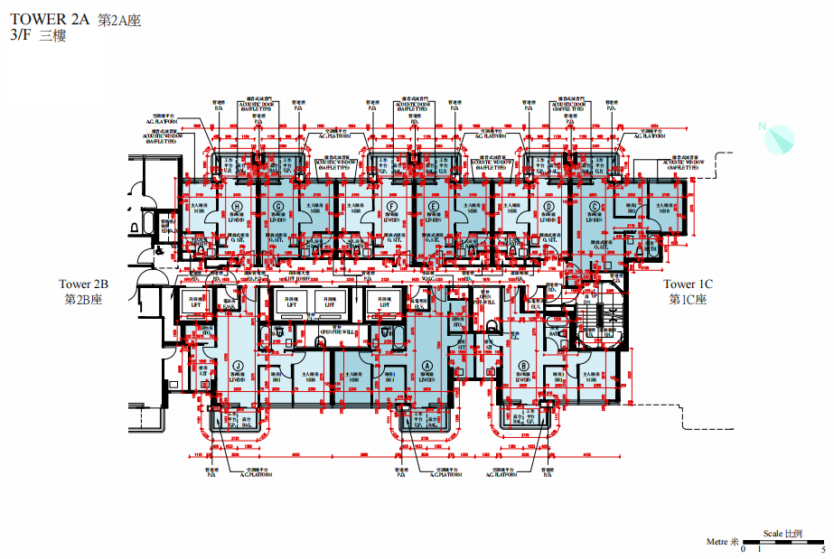
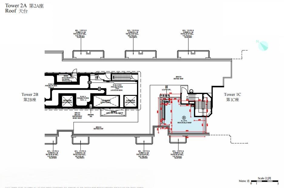
樓層平面

可視化展示樓棟佈局與景觀分層,輔助選房決策

樓棟梯戶比公示

1-4 棟

配置:3 梯 6 戶

定位:中低層,主打 1-2 房通勤戶,部分享園景

5-8 棟

配置:2 梯 4 戶

定位:中高層,主打 3-4 房海景戶,高層單位無遮擋維港景

會所樓

配置:獨立出入口

功能:1-2 層為社區配套,3 層為空中花園

景觀分層標註

低層(1-15 樓)

園林景 + 部分體育園景,適合注重性價比的通勤客群

中層(16-30 樓)

側海景 + 城市景,兼顧景觀與生活便利

高層(31 樓及以上)

270° 無遮擋維港景,為項目稀缺藏品戶型

空間說明

樓棟信息:8 棟住宅 + 1 棟獨立會所,分 2 期開發,總戶數 1280 伙(1A 期已售 65%)

戶型分佈:開放式(244-269呎)、1-2房(269-510呎)、2-3房(510-771呎)、3-4房(771-1770呎)

景觀標註:啟德唯一三面環海住宅,70% 單位享無遮擋維港景,部分高層可俯瞰啟德體育園及獅子山雙重景觀